від 1 шт
Опис
Опис:
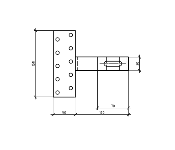
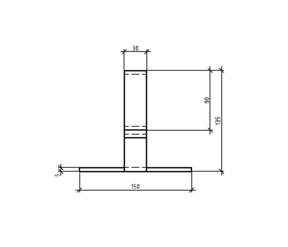
Заставна призначена для монтажу сонячних панелей на керамічну черепицю.
Характеристики:
1. Матеріал: спеціальний стійкий до погодних умов матеріал
2. Міцність: здатність витримувати вагу сонячних панелей
3. Довговічність: стійкість до впливу сонячних променів та дощу
4. Простота монтажу: зручна конструкція для швидкого встановлення
5. Універсальність: підходить для різних типів керамічної черепиці.
Виберіть свою колірну схему


